我要收藏
公共资源调用站点
文章分享
2020年10月1日山西太原台骀山滑世界农林生态游乐园有限公司冰雕馆发生重大火灾事故,造成13人死亡、15人受伤,冰雕馆内原本有5个出口,但在火灾发生时,有3个被人为封堵或紧固,1个无法从内部打开,安全出口成为安全堵口,13条生命不幸逝去。
回顾事故发生经过
2020年10月1日,7时34分35秒,台骀山游乐园10千伏线路发生故障,为保证正常营业,8时50分许,景区水电部工作人员开启了4台自备发电机供电,故障排除后,工作人员直接将单刀双掷隔离开关,从自备发电机端切换至市电端。
12时59分22秒,火车通道西口开始冒烟。
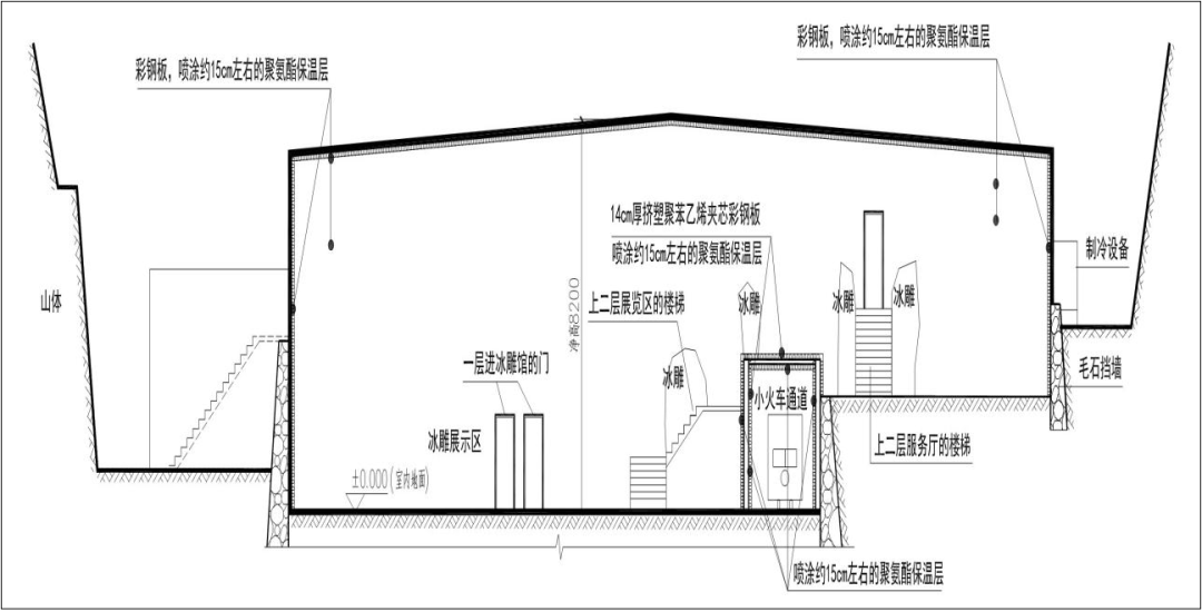
冰雕馆东口剖面图
冰雕馆西口剖面图
冰雕馆平面示意图
调查报告显示,违章带负荷快速拉、合隔离开关的操作,在火车通道照明线路上形成的冲击过电压,击穿了装饰灯具的电子元件造成短路,电子元件装置起火,进而引发火灾,事故发生时,冰雕游览区内共有28名游客被困。
12时59分许,工作人员发现火车通道内冰雕馆一侧有明火,随即到配电室断电。
13时01分许,另一工作人员发现冰雕馆西侧冒烟后,立即拨打119报警,冰雕馆负责人与现场员工开始灭火。
起火后火势迅速扩大蔓延至整个冰雕馆,聚氨酯、聚苯乙烯等易燃可燃材料大面积燃烧,产生了大量高温有毒烟气,冰雕游览区内焦慧涛等游客,在闻到刺鼻的气味、发现冰雕馆内停电、看到有明火由西向东蔓延并伴有浓烟后,沿原路返回,发现冰雕馆入口门无法打开,随即用力敲打、踹门,检票员听到后开门,15名被困游客由此逃生。
冰雕游览区游览线路设计复杂,事发时冰雕游览区人为断电,现场无工作人员引导疏散,冰雕馆内疏散通道不通畅,5个出口中有3个人为封堵或紧固、1个无法从内部打开(西侧出口人为用冰块封堵、南侧两个出口设置在火车通道内且用铁销紧固、入口门无法从内部打开)导致发生火灾时游览人员不能及时逃生,因一氧化碳中毒、呼吸道热灼伤、创伤性休克等原因造成人员伤亡,13条生命不幸逝去。
安全提示
《中华人民共和国消防法》第二十八条规定:
任何单位、个人不得损坏、挪用或者擅自拆除、停用消防设施、器材,不得埋压、圈占、遮挡消火栓或者占用防火间距,不得占用、堵塞、封闭疏散通道、安全出口、消防车通道。人员密集场所的门窗不得设置影响逃生和灭火救援的障碍物。
当发生火灾等紧急情况时,如果逃生通道不畅,会让人错失宝贵的逃生时机,最终导致无法挽回的惨剧,关于“生命通道”一定牢记“七不能”。









文件下载:
关联文件: